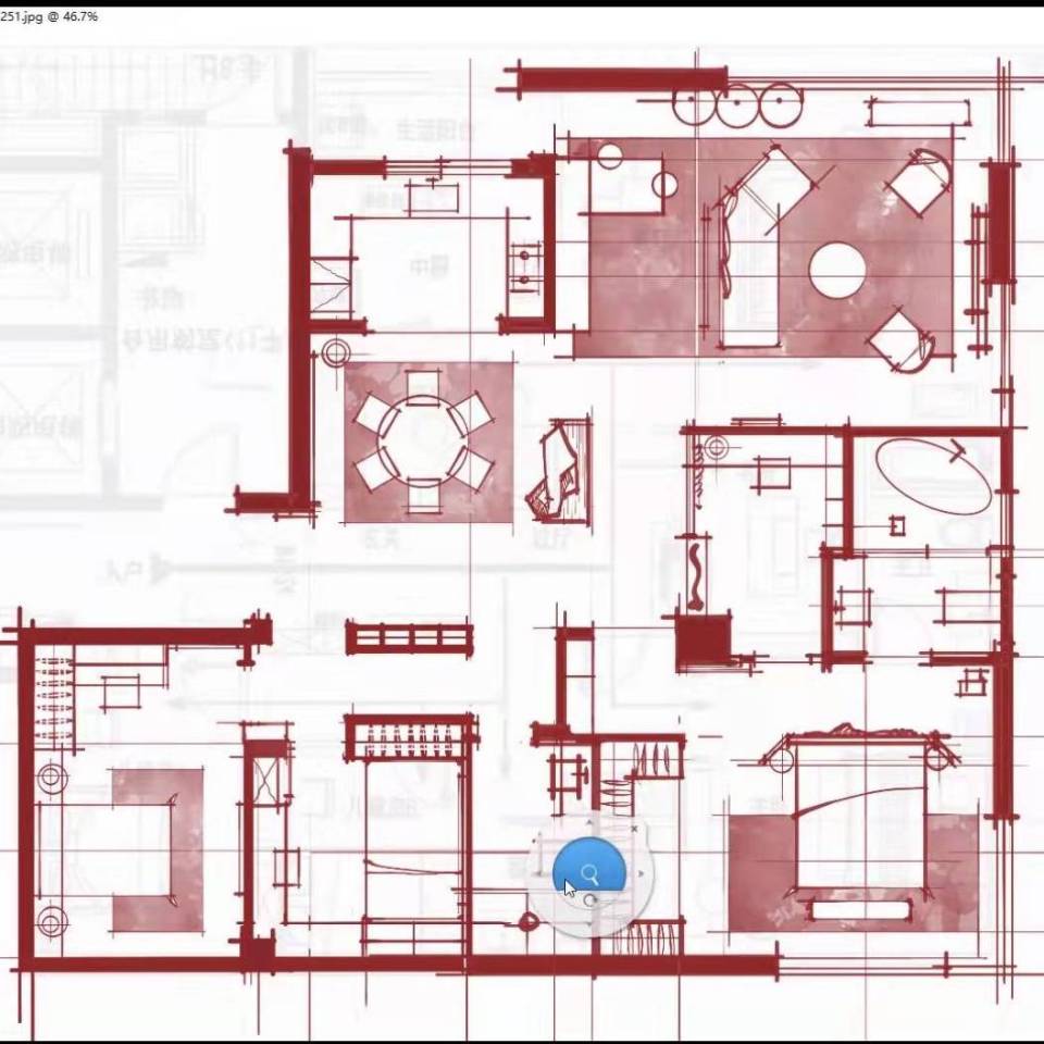
大佬们有啥想法吗,承重墙太多了,我没想法了,业主要四个卧室
室内设计吧
全部回复
仅看楼主
level 6
Papa🌝 楼主
主卧
女儿房
老人房
客房
2022年01月19日 08点01分 1
level 14
路过
2022年01月20日 04点01分 2
level 9
有价值的设计可以这样,你知道吗?
A】 让房子变大十几平米,甚至几十平米,
B】 选择二十年后也不会后悔的方案
C】 合理分配资源,好钢用在刀刃上
D】 降低预算,不降质量,教你花奥拓的钱搞定奥迪
in-twenty-years (微信)
【设计收费】设计费¥500元/㎡
【设计流程】支付1000元定金后开始设计
支付定金后,一星期左右设计好初稿与甲方沟通修改
平面方案确定后,支付30%设计费,开始设计三维效果图方案,
效果图方案确定后,支付30%设计费,开始整理各种详细施工图纸,
最后付清设计费尾款,
2022年01月20日 06点01分 3
level 6
承重都框定好了,就按称重做呗。
2022年01月20日 08点01分 4
1