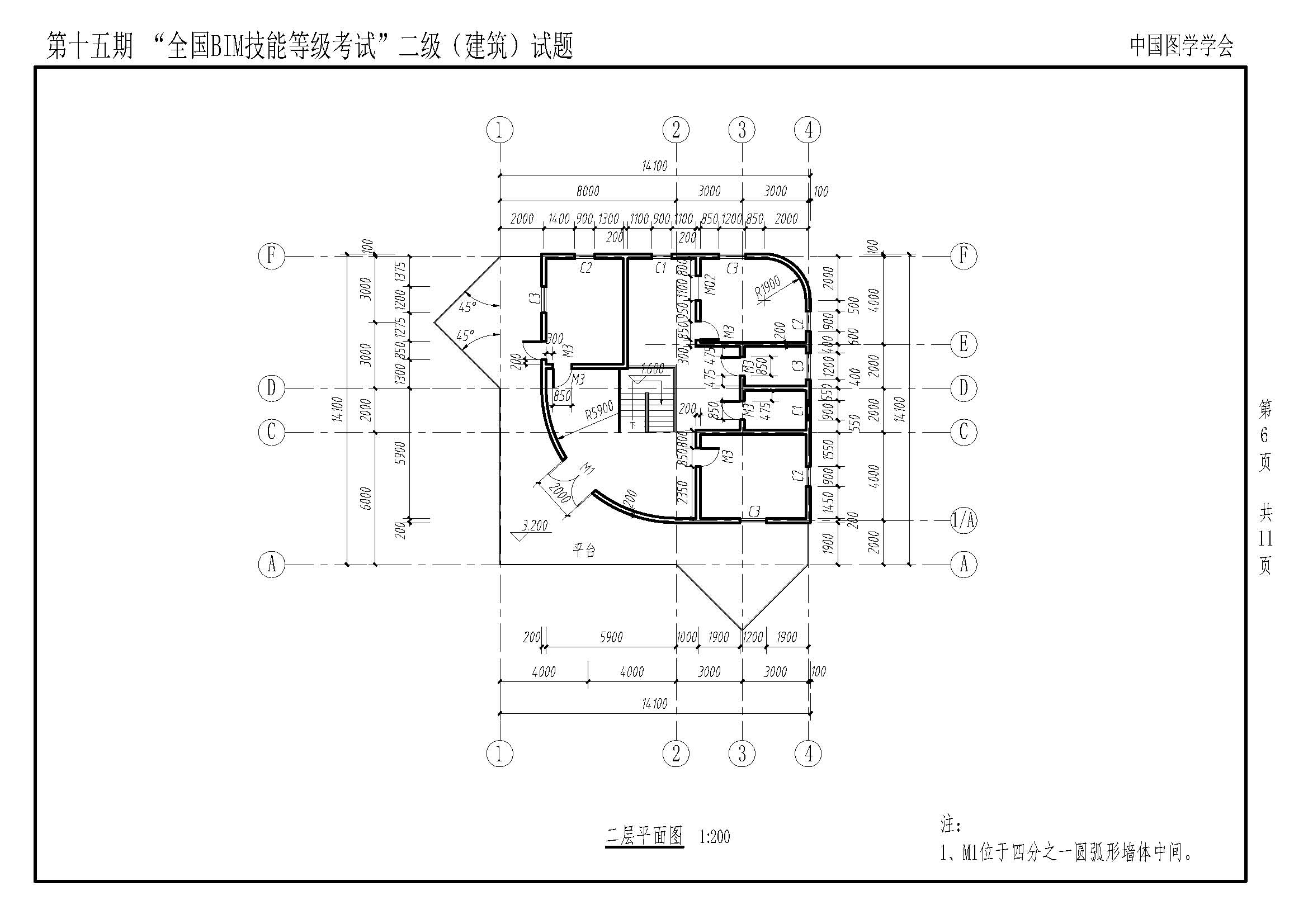
最新!图学学会BIM二级建筑真题
bim吧
全部回复
仅看楼主
level 6
沧海云帆一
楼主
2019年12月08日 13点12分
1
level 3
37℃的流氓兔
有人知道第一题怎么做吗
2019年12月09日 05点12分
2
沧海云帆一
我考的二级设备,建筑不了解
2019年12月10日 01点12分
level 3
😘麻吉雅八酷叻
有人知道第二题怎么做吗
2019年12月10日 00点12分
4
沧海云帆一
考的二级设备,帮不了你
2019年12月10日 01点12分
Brother_飞丶
私聊我 我可以教你做
2019年12月10日 04点12分
level 1
蝙蝠侠吃刀削
三个小时要做这么多内容么。。感觉别墅的要做挺久的
2019年12月10日 03点12分
5
Brother_飞丶
哈哈 第一题我放弃了 最后那个喷泉大概画了一下 最后还剩个十分钟 这期感觉难度不大 但是量还是很多
2019年12月10日 04点12分
沧海云帆一
不求做完,只求能过就行,我考的第十二期,根本就没做完
2019年12月10日 06点12分
level 9
小让♂
还好我去年过二级建筑,一年比一年难
2019年12月10日 05点12分
6
沧海云帆一
对的,考的早的还是好
2019年12月10日 06点12分
level 1
渔夫85
能看得清晰吗
2023年12月11日 04点12分
8
1