帮忙选个户型
户型吧
全部回复
仅看楼主
level 1
HYSWAT
楼主
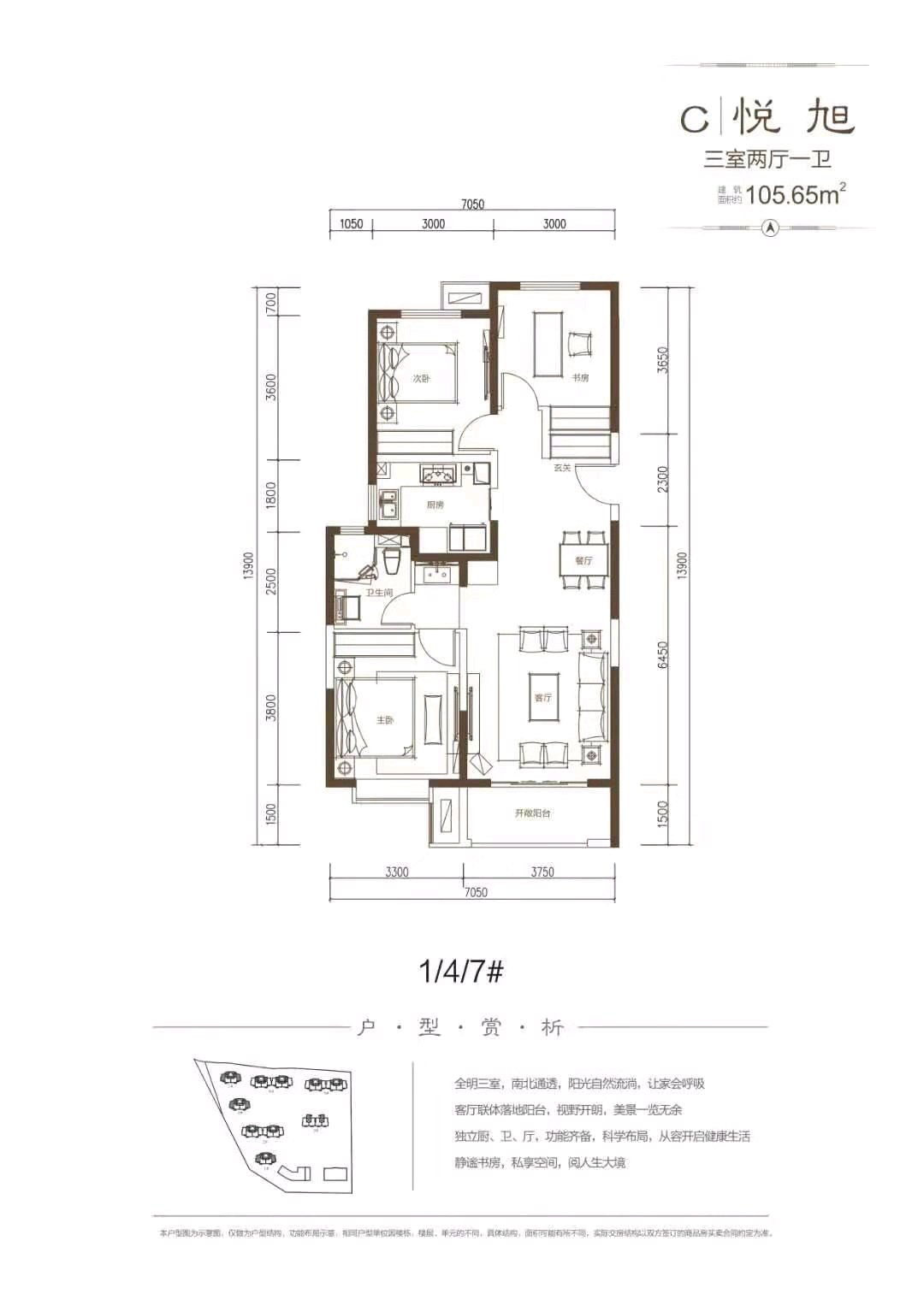
帮忙分析一下这两个户型之间选哪个好一点,都宣称是南北通透,方一点的是中间户但是只有一个卧室的窗户朝北开;长一点的是边户,相对中户要通透很多,但是卧室的面积要比另外一个小。结合居住的舒适度大神们帮忙分析一下买哪个户型好,单价基本一样。
2019年11月13日 22点11分
1
level 9
奈绪江
结果哪个都不是南北通透
2019年11月13日 23点11分
2
HYSWAT
怎么样算南北通透,不是南北都有窗户吗
2019年11月13日 23点11分
level 1
KVHWYT
第一个好些,虽然都只有一个卫生间
2019年11月13日 23点11分
3
level 9
奈绪江
这种叫南北通透。你那俩二选一的话,我选边户
2019年11月14日 00点11分
5
吧务
level 16
星铃丹
如果你的常住人口不大于三人的话,就选中间户,不用太过顾虑隐私问题。
2019年11月14日 00点11分
6
level 1
ttpap
富力湾业主群,看私信
2019年12月08日 11点12分
7
1