二期装修日志
奉馨苑吧
全部回复
仅看楼主
level 11
哥是硬汉♬
楼主
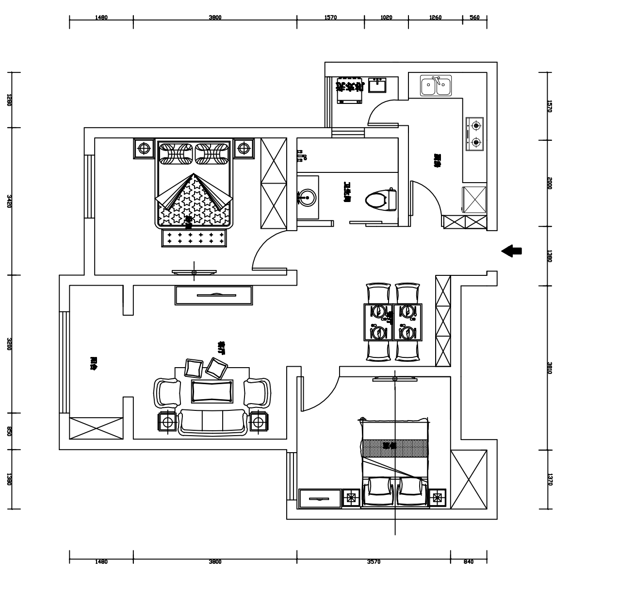
记录下 二期96平的装修过程,
给后期业主做参考
2018年12月13日 00点12分
1
level 11
哥是硬汉♬
楼主
建筑面积96 , 主卧大南, 次卧小南, 客厅正南, 房型还不错,大体格局不变
2018年12月13日 00点12分
2
level 11
哥是硬汉♬
楼主
本套装修与另外一套属于同时设计, 所以这套基本是附带品,不大改格局情况下,几家设计师方案基本一致
2018年12月13日 00点12分
3
level 11
哥是硬汉♬
楼主
提出要求:
简单,不改格局,高大上!
墙面简单做,不掉粉就可以,卫生间必须玻璃淋浴房,小阳台封掉,不敲墙鞋柜后期买。
为了效果,房间衣柜安排做掉。
灯具自己选购,买自己喜欢的,装修公司的意思可以帮忙安装。
简单下来 报价在5-6W之间。
另外几家装修公司,要去现场谈,因为出现不便,就没去了解。
报价参差不齐,原则就是 去掉最低价,去掉最高价,了解中间价。
2018年12月13日 00点12分
4
level 11
哥是硬汉♬
楼主
12-30 进瓷砖了
12-31 开始贴瓷砖, 今天补照片
上海下雪了, 美照一张!
2018年12月30日 23点12分
16
level 11
哥是硬汉♬
楼主
1-2号 开通天然气, 煤气公司收费 1100+
有点黑啊, 2个管子 一个去热水器 一个去灶台
2019年01月04日 01点01分
19
level 11
哥是硬汉♬
楼主
出差一周,1-8 目前卫生间的窗户换掉了, 厨房的柜子, 后面补照片
2019年01月08日 06点01分
22
level 11
哥是硬汉♬
楼主
卫生间 瓷砖
淋浴房已做, 厨房在吊顶, 后续补照片
2019年01月19日 05点01分
25
1