自盖房的困惑
自建房吧
全部回复
仅看楼主
level 13
贴吧用户_05EAaSt
楼主
请教下大神们,我这是河南这边的一个小县城,我的老宅子房子很破了,已经好多年没住人了,现在想自己盖房子,但是我那老宅子又在旧城改造的范围内,听说有政策是让扒不让盖,吧友们有没有这种情况,又什么好对策没有,多次赐教了!本来计划盖两层,现在弄的心里没底了,还有就是盖房子正常怎么走手续?房子盖好后怎么办房产证?
2018年09月25日 03点09分
1
level 13
贴吧用户_05EAaSt
楼主
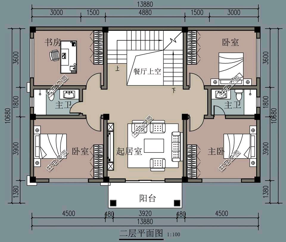
附上自己找的设计图
2018年09月25日 03点09分
2
level 13
贴吧用户_05EAaSt
楼主
没人吗?
2018年09月25日 04点09分
3
level 7
骑着蜗牛👻闯荡
这是贴吧周口的一个人的吧
2018年09月25日 05点09分
4
level 8
weilong2263
申请危房改造
2018年09月25日 08点09分
5
贴吧用户_05EAaSt
谢谢了,有这个打算
2018年09月25日 23点09分
level 12
xu312343993
去规划局咨询就明白了,不让盖就找关系也可以的。
2018年09月25日 16点09分
6
贴吧用户_05EAaSt
谢谢了
2018年09月25日 23点09分
level 13
贴吧用户_05EAaSt
楼主
刚给村里打电话问问,说只要不超过三层随便盖
2018年09月26日 05点09分
7
level 6
祥哥home
老乡多上点图看看呀!北面不开窗的好少啊!!
2018年09月26日 08点09分
8
贴吧用户_05EAaSt
我的也是打算北边不开大窗,开小窗
2018年09月26日 23点09分
level 6
阿龙哥哥2014
危房改造,政策可以盖,不让盖让政府安排住房。
2018年09月26日 09点09分
9
贴吧用户_05EAaSt
问村里了,没有危房改造政策,房子可以盖,只要不超过三层就行
2018年09月26日 23点09分
level 13
贴吧用户_05EAaSt
楼主
现在沙子 石子 水泥 钢材,没有一个便宜的,都在涨价
2018年09月27日 00点09分
10
景三呐
想盖就抓紧时间盖,物价一直不等人
2018年09月27日 00点09分
贴吧用户_05EAaSt
@景三呐
是啊!现在环保还查的严。
2018年09月27日 00点09分
1