关于街区制小区
户型吧
全部回复
仅看楼主
level 9
叶敏敏🌟
楼主
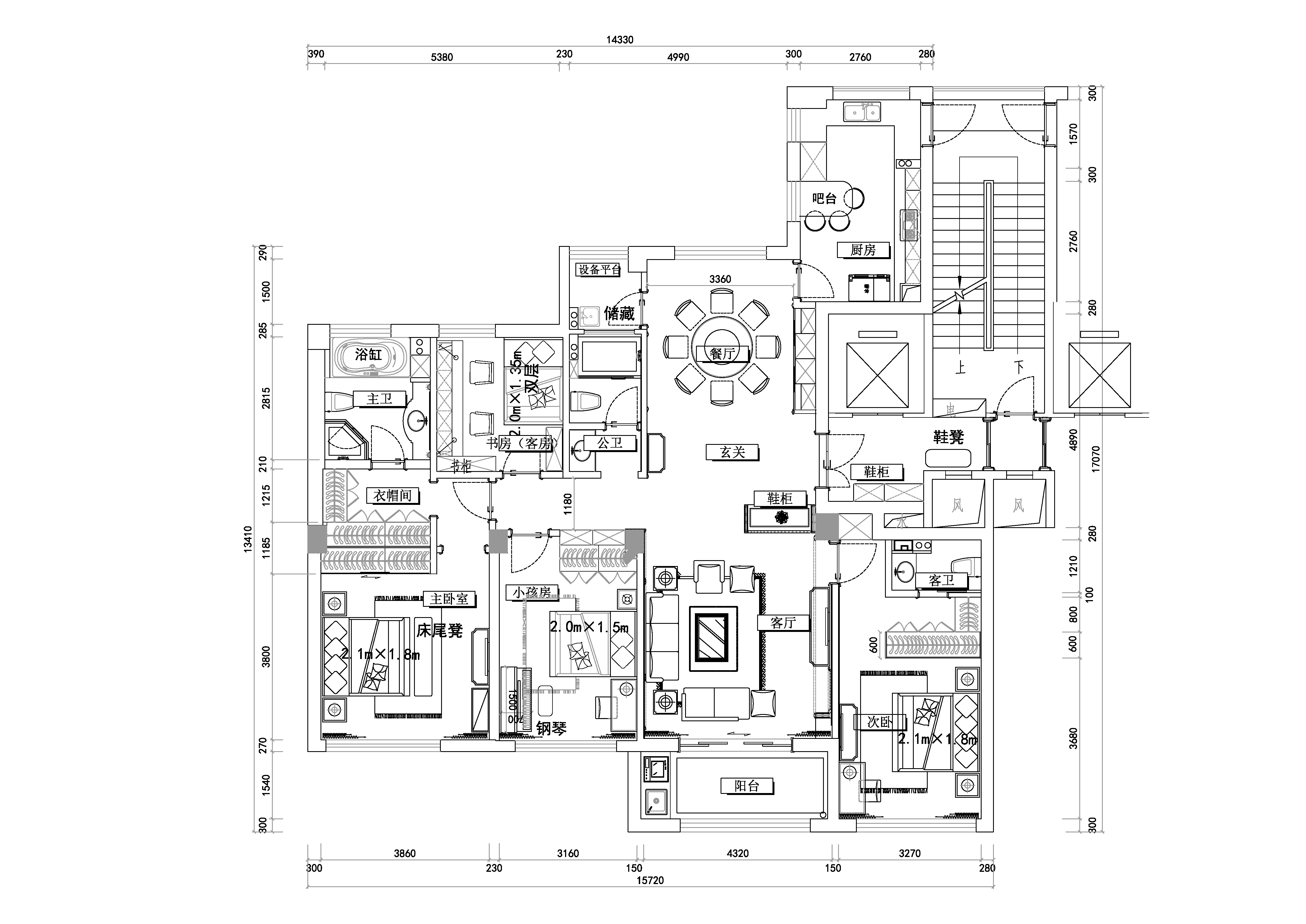
当大家还在讨论打开围墙时,我刚买的小区就是街区制小区!也没什么感觉!就是一个小区分成了四五个单元,每个单元进去的入口都还是有保安的,要刷门禁卡才能进去,进大楼楼道也是要刷门禁卡的,然后电梯也是刷门禁卡到户的!
小区一共700多户,全部是地下车位,共1300个车位!
中间有一个公用的公园,感觉也挺好的!
路边开了几家小商店,挺方便的!
晚上也没什么车,一点都不吵!
我们家是左数第三栋!
跟我现在住的封闭式小区也差不多!
----来自卓然天成~Lumia 1520~!
2016年02月23日 07点02分
1
level 12
光zhizi
建设的时候都设计好了,原来封闭的不好改。主要很多市中心的小区如果来条近路,车少不了
2016年02月23日 07点02分
2
level 14
晋星帝国
配套做得好,安保到位,警力及社区服务跟得上,居民普遍素质不低,这样的环境下搞街区制没问题。
但是,有很多地方都不具备这样的条件。车子乱停乱放,保安睁眼闭眼,小偷横行,摊贩随意摆卖无人管……这样的环境下,街区制简直就是致命。
2016年02月23日 07点02分
3
level 9
买房不为读书💯
户型太牛b了,宁波都才200万,我都想买啊!我这套164的都178万了。户型还不是这样的。我象山买来不算最好地方都要10900一平方,你这个才1.2万都不到?
2016年02月23日 08点02分
4
叶敏敏🌟
不是的,我贷了200w ----来自卓然天成~Lumia 1520~!
2016年02月23日 08点02分
叶敏敏🌟
----来自卓然天成~Lumia 1520~!
2016年02月23日 08点02分
买房不为读书💯
@叶敏敏🌟
太有钱了~~~
2016年02月23日 08点02分
买房不为读书💯
@叶敏敏🌟
200w,20年就算有公积金贷80万也要12400左右一个月,月收入没到2万简直没法活啊。肯定是领导~~~
2016年02月23日 08点02分
level 9
叶敏敏🌟
楼主
俯瞰
2016年04月18日 05点04分
5
level 14
晋星帝国
楼主是哪里的户型?
2016年04月18日 07点04分
6
叶敏敏🌟
俺是宁波的 ----来自卓然天成~Lumia 1520~!
2016年04月18日 08点04分
level 6
windyJackie9
我住在加拿大 给大家展示一下国外的街区制。蓝点是我家 我这个小区是三层的多层+部分两层的联排 可以看出国外的街区还是更密集 小路更多
2016年04月20日 01点04分
7
叶敏敏🌟
然后街边开几家小店,还是很惬意的
----来自卓然天成~iPhone SE~!
2016年04月20日 01点04分
windyJackie9
回复 renjiang1024 :我这边停车规划的挺有意思 路边有牌子规定每周哪天的几点到几点不能停 否则警察就来开罚单。而且加拿大很讲城市规划 居民区里不能搞商业行为 商店只能在大马路边开
2016年04月20日 01点04分
level 9
叶敏敏🌟
楼主
新鲜出炉!
----来自卓然天成~iPhone SE~!
2016年04月22日 04点04分
8
level 2
山羊可好
你们小区公建,绿化都对外开放吗
2016年04月26日 07点04分
9
叶敏敏🌟
看我一楼发的前面三张图,我们小区其实是划了五个区域,其中四个是住宅区,中间的一个是幼儿园和花园! ----来自卓然天成~iPhone SE~!
2016年04月26日 07点04分
叶敏敏🌟
四个住宅区是封闭的,有自己独立的绿化和围墙,进去是要刷卡的,外人是进不去的!中间那个花园和幼儿园是对外开放的! ----来自卓然天成~iPhone SE~!
2016年04月26日 07点04分
叶敏敏🌟
其实我们回家和封闭式小区的步骤一点没少,每个区域进去的入口都还是有保安的,要刷门禁卡才能进去,进大楼楼道也是要刷门禁卡的,然后电梯也是刷门禁卡到户的! ----来自卓然天成~iPhone SE~!
2016年04月26日 07点04分
叶敏敏🌟
忘了说花园里还有个公共厕所也是对外开放的,我去过,装修的还是蛮高大上的 ----来自卓然天成~iPhone SE~!
2016年04月26日 07点04分
level 9
叶敏敏🌟
楼主
地下车库都是通的,我们小区720户,地下车位共有1400多个(包括只租不售的人防车位),配比1:2,w安全够用!
----来自卓然天成~iPhone SE~!
2016年04月26日 08点04分
10
level 7
asroma27
不错
2016年04月26日 12点04分
12
level 9
叶敏敏🌟
楼主
楼主家在三楼,只能看看近景,好在有别墅在,不挡阳光,有水有树就是蚊子多
----来自卓然天成~iPhone SE~!
2016年06月06日 00点06分
15
level 9
叶敏敏🌟
楼主
2016年06月06日 00点06分
18
level 9
叶敏敏🌟
楼主
2016年11月22日 00点11分
20
1