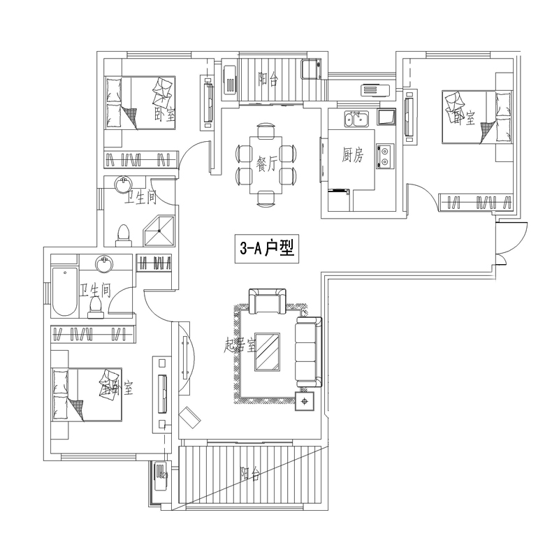
求大师帮忙看下户型有什么需要改动的地方
装修日记吧
全部回复
仅看楼主
level 1
hackrsh
楼主
五万兄进来帮忙看下啊 哈哈
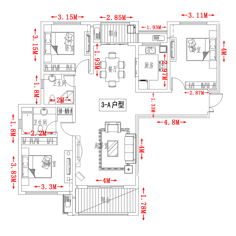
房产商还没有给详细的图纸 这个尺寸是我用尺子亮出来的
2014年09月02日 03点09分
1
level 3
longerslove
鞋柜放哪里呢,沙发倒是可以挪一下,户型挺周正的
2014年09月03日 02点09分
3
hackrsh
鞋柜就在进门右手边,沙发挪哪啊?
2014年09月09日 09点09分
level 2
滨州装修小陈😄
1、鞋柜可以放在入户门进门的右边,把卧室衣柜和门往里挪一点。鞋柜做成靠墙的那种整体实用大气;2、卫生门和餐厅太近中间没有隔断直逼厨房门 在风水学中这个很忌讳;
2014年09月09日 03点09分
4
hackrsh
进门右边是设计的鞋柜,图纸上看着小实际上很大,卫生间和厨房对冲看出来了,是准备做隔断的,还有其他的修改意见吗? 多谢啦
2014年09月09日 09点09分
level 3
刺猬没有刺2
需要装修设计方案是吧?
2014年09月09日 09点09分
5
hackrsh
对啊,要是大师们给点意见那就多谢了
2014年09月09日 09点09分
刺猬没有刺2
回复 hackrsh :在哪个城市阿?
2014年09月12日 13点09分
level 10
daog313
卫生间的门怎么会对着餐厅的
2014年09月11日 02点09分
7
level 6
皇家卫浴淘宝店
楼主卫生意还少浴室柜吧。
2014年09月15日 08点09分
8
1